Portfolio - NUOVA AULA CARLO DE CARLI

NUOVA AULA CARLO DE CARLI


Project Description

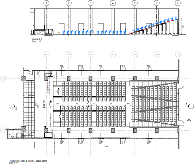
ANNO 2020 – Progettazione esecutiva e direzione lavori relativi alla realizzazione della nuova aula Carlo de Carli presso il polo Bovisa, campus Candiani, edificio B9 del Politecnico di Milano, Via G. Candiani, 72. (Importo Lavori: 1.000.000 €)